两层无避让车库
本机型全部为钢结构组件,可设计在室外空地停车使用并架设遮雨棚,外围可装修,增加美观。
产品特点
1.本机型全部为钢结构组件,可设计在室外空地停车使用并架设遮雨棚,外围可装修,增加美观。
2.通过对传统简易升降的改良,使承载载车板的立柱在轨道上可以前后滑行。存取车时,上层车台缓慢向外运行,到位后载车板转动90度,随后载车板下降至地面,车辆便可自由进出。整个存取过程无需避让。
3.实现了“无避让”(上层车下来,下层车无需避让)停车,有效解决倒车入库、停车、取车时间长、效率低下等问题。
4.可在地面直接安装,无轨道槽,避免坑内积水和零件锈蚀现象。
5.广泛用于室内停车场,特别是地下负一层(如:住宅小区、商务办公写字楼、酒店、企事业单位等)
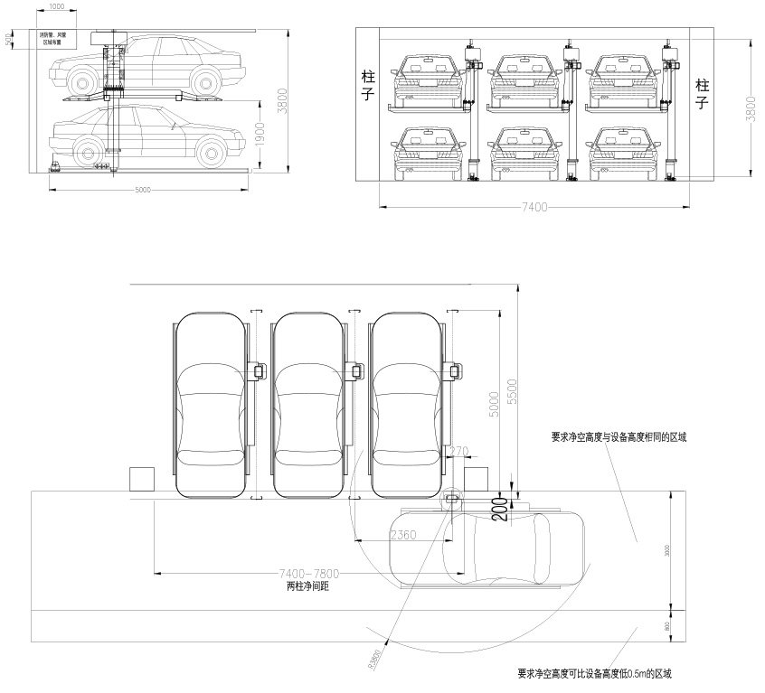
设备简图
![]()
技术参数
| 适停车辆 | 型式 | 中型车Z | 中型车Z | 特大型车T |
| 车辆尺寸 | 长X宽X高 | 长X宽X高 | 长X宽X高 | |
| (mm) | ≤4700X1800X1450 | ≤4700X1800X1450 | ≤5300X1900X1550 | |
| 车重(kg) | ≤1500 | ≤1500 | ≤2350 | |
| 需求空间 | A(mm) | 2350 | 2350、2500、2600 | 2350、2500、2600 |
| B(mm) | 5200 | 6000 | 6000 | |
| C(mm) | 5500 | Wp*N+200 | Wp*N+200 | |
| 净高L(mm) | ≥3600 | ≥2900 | ≥3100 | |
| 额定速度 | 升降(mm) | 4.8 | 4.8 | 4-6 |
| 横移(mm) | 7.9 | 7.9 | 7.9 | |
| 电机功率 | 升降(kw) | 2.2 | 2.2 | (2.2)3.7 |
| 横移(kw) | 0.2 | 0.2 | 0.2 | |
| 动力电源 | 3相5线制 | 3相5线制 | 3相5线制 |
注:具体尺寸以设计为准
立即询价
如果您有任何疑问,请填写下列表格,我们将尽快跟您联系